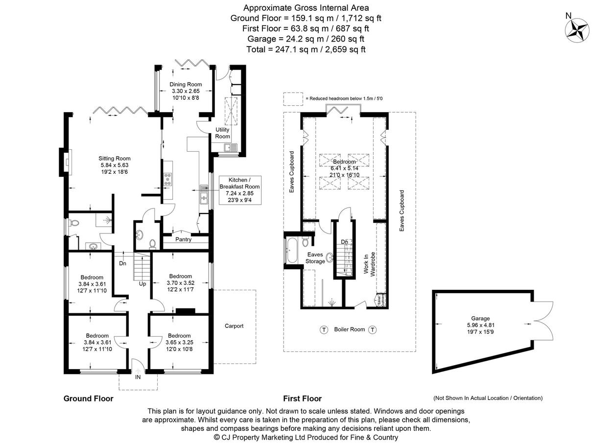
Designed to provide a high degree of flexibility, Beechwood is a fantastic home for everyday family life and entertaining which has been updated by the current owners to include modern conveniences such as air source heat pump, underfloor heating and new aluminium windows and doors to name a few. Accommodation comprises four double bedrooms which could be utilised as additional reception space if desired, serviced by a stylish shower room. The main living space is located to the rear, taking full advantage of the stunning views with a large sitting room with feature inglenook fireplace and bi-fold doors to the garden, dining room also with bi-fold doors to the garden, and well-appointed modern kitchen with separate utility room and pantry allowing ample storage. A cloakroom completes the ground floor accommodation. The principal suite occupies the entire first floor and is a luxurious space with Juliet balcony in the bedroom allowing views over open countryside and an ample walk in wardrobe and beautifully finished en-suite bathroom. Outside the garden is mainly to lawn with two decked areas for seating. The gated driveway offers ample parking with the benefit of a detached garage and carport with EV charger to the side of the property. St Leonards, set within the Chiltern Hills AONB, boasts a vibrant and active community with excellent accessibility to the surrounding countryside. Wendover Woods is a short distance away and offers a range of amenities including scenic walks, bridleways, a cafe, and childrens' playground. The market towns of Tring, Wendover, Berkhamsted, and Chesham are all within easy reach, offering a variety of shopping, dining, and leisure facilities. The area is also well served by highly regarded independent and state schools, with the advantage of access to the Bucks Grammar School system.
A.M.L Identity Verification
In line with UK Anti Money Laundering (AML) regulations, we are obligated to verify the identity of all prospective purchasers once an offer has been accepted. To carry out this process, we use a trusted third-party identity verification system. A nominal fee of £45 + vat per person applies for this service.
To make an appointment to view Jenkins Lane, please fill in the form below.
Alternatively please call us on 01442 877627 during office hours.


